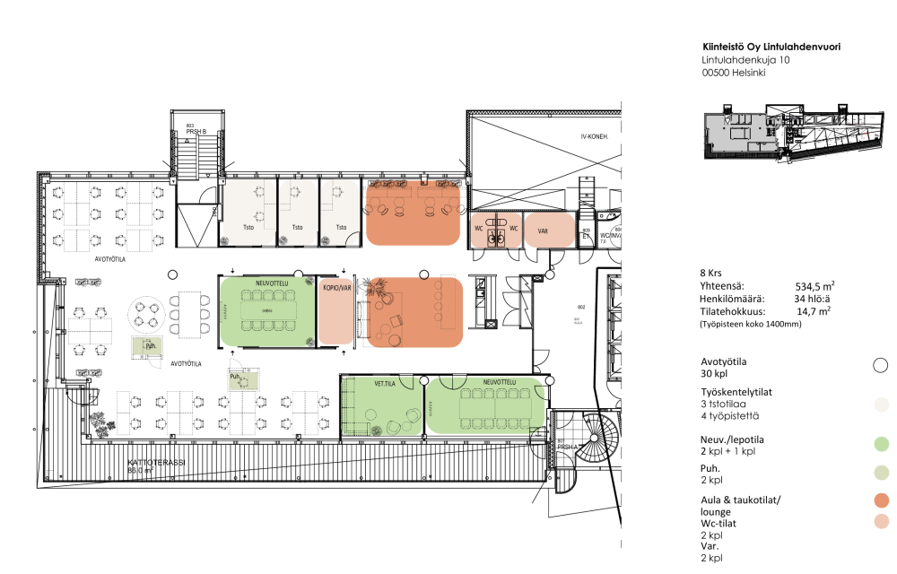
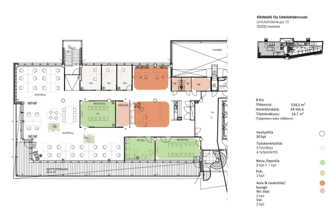
Lintulahdenkuja 10, Helsinki Sörnäinen534m2
Isolla terassilla valoisaa ja tehokasta toimistotilaa ylimmässä 8. kerroksessa hyvillä kulkuyhteyksillä Lintulahdessa Sörnäisissä. Tästä toimitostilasta on näkymät neljään eri ilmansuuntaan. Tämä tila taipuu monelaisiin tilatarpeisiin ja räätälöidään asiakkaan tarpeiden mukaan. Vuokraan sisältyy yhteiskäyttöiset neuvottelutilat sisääntulokerroksessa. Lintulahden toimistotalo valmistui kesällä 2009 ja se sijaitsee Hämeentien ja Sörnäisten rantatien välissä. Hankkeelle myönnettiin ensimmäisenä Pohjoismaissa LEED® -ympäristösertifikaatti. Hyvien liikenneyhteyksien varrella. Kiinteistössä on lämmitetty autohalli ja katutasossa henkilöstöravintola sekä vastaanottopalvelut. Vuokralaisten yhteiskäytössä on lisäksi iso neuvotteluhuonekeskus kaikkine palveluineen. Suihkutilat pyöräilijöille, Cat6 - kaapelointi
Ei energiatodistusta.
Toimistotila
Helsinki / Sörnäinen
Lintulahdenkuja 10, 00500 Helsinki
- Oma terassi


