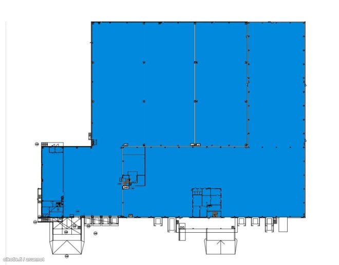
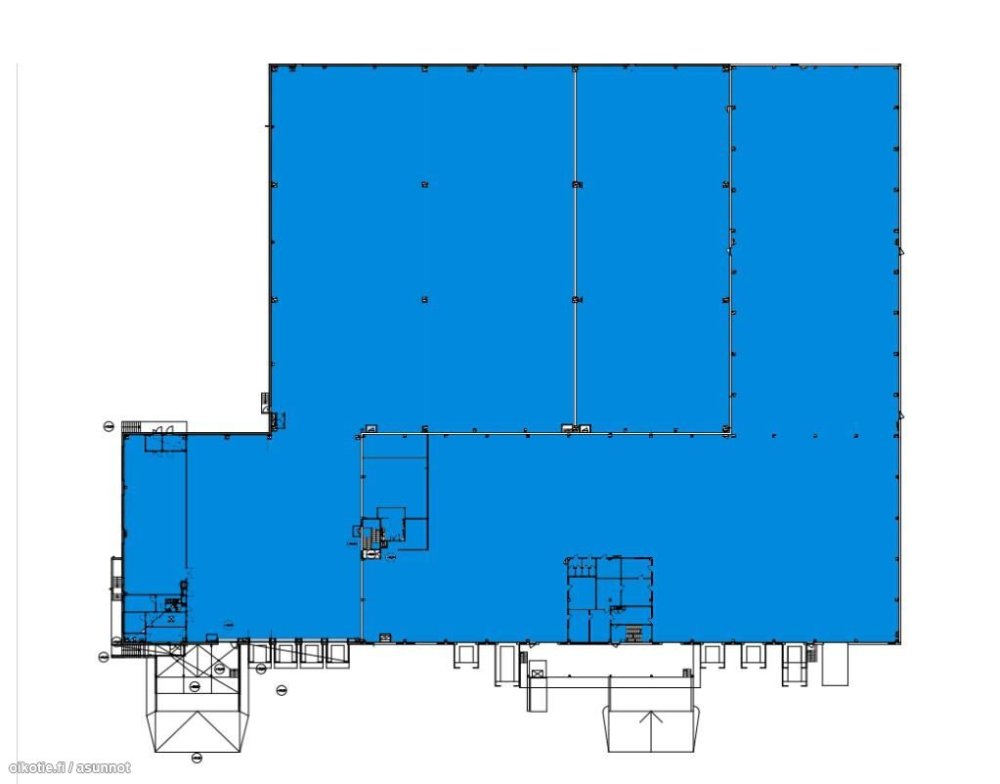
Pakkalantie 21, Vantaa Pakkala8528m2
Terminaalitilaa, jonka vapaa korkeus 5,5-10. Sisäänajettava varasto, katettu lastauslaituri x 2 ja useita erillisiä lastaustaskuja. Osassa tilassa hyllyt, erillinen vastaanottotila, jonkin verran toimistotilaa, reilusti wc- ja sosiaalitiloja. Pihatilaa jonkin verran saatavilla ja lastausmahdollisuudet loistavat. Kysy lisää!
Logistiikkakiinteistössä Vantaalla, lentokentän läheisyydessä, on tarjolla varastotilaa. Kiinteistö on helposti saavutettavissa Kehä III (E18), jolta on hyvät yhteydet kaikille pääteille Helsingin alueella.
Tämä teollisuuskiinteistö sijaitsee aivan Helsinki-Vantaan lentokentän tuntumassa ja siinä on laaja piha-alue, mikä antaa sille ainutlaatuisen leiman.
Suora yhteys Kehä III
10 km Helsingin keskustasta, 5 minuutin ajomatka lentokentälle
Erinomainen sijainti lentokentän läheisyydessä
Laaja valikoima ravintoloita ja muita palveluja lähellä
Ekologinen ja sertifioitu
Ei energiatodistusta.
Tuotanto- ja varastotilat
Vantaa / Pakkala
Pakkalantie 21, 01510 Vantaa


