« takaisin
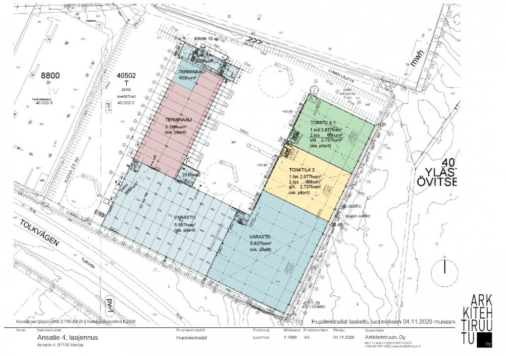
Ansatie 4, Vantaa Pakkala2687m2
Vuokrattavana 11,7 m korkeaa ja uudentasoista käytännöllistä varastotilaa viidellä lastaustaskulla ja lisäksi avolaituri nosto-ovella. Lattian kantavuus 5000kg/m2. Kohde hyvällä sijainnilla Kehä III:n suorassa läheisyydessä. Varaston osuus neliöistä 2555,5 m² , 1. kerroksen sos.- ja taukotilat 65,5 m2 ja parvitoimisto 2.krs 65,5 m². Mahdollisuus saada lisää toimistotiloja läheisyydestä. Ei lavahyllyjä valmiina.
Ei energiatodistusta.


