« takaisin
Koivuvaarankuja 2, Vantaa Hämeenkylä8632m2
Jaettavissa oleva siisti tilakokonaisuus, joka sisältää hyvät lastausmahdollisuudet. Tilassa on sekä matalaa että korkeaa varastoa. Toimistotilaa myös. Toisesta kerroksesta löytyy myös elokuvateatteri. Tila on heti vapaa.
Kiinteistössä on lounasravintola, edustus- ja neuvottelutiloja, R-kioski, suihku- ja saunatilat, uima-allas sekä monipuolinen kuntokeskus Fit Ärrävaara. Ärrävaara sijaitsee hyvien liikenneyhteyksien varrella Kehä I:n ja Kehä III:n läheisyydessä, Vihdintien kupeessa. Ärrävaaraan pääsee sujuvasti linja-autoilla Espoosta, Helsingistä ja Vantaalta. Bussipysäkit sijaitsevat kiinteistön edustalla, mistä pääsee kätevästi mm. Myyrmäen juna-asemalle
Ei energiatodistusta.
m2
8632
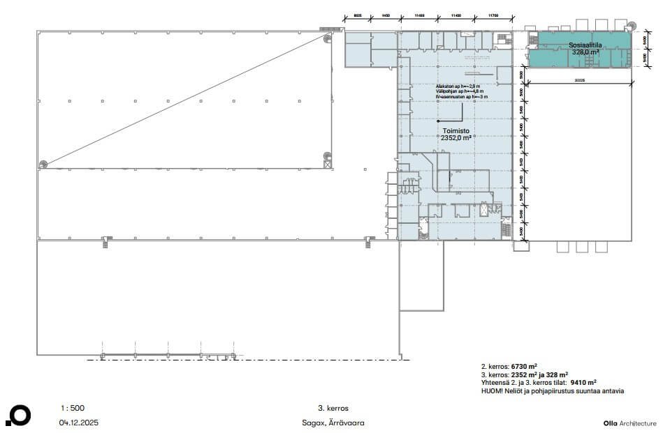
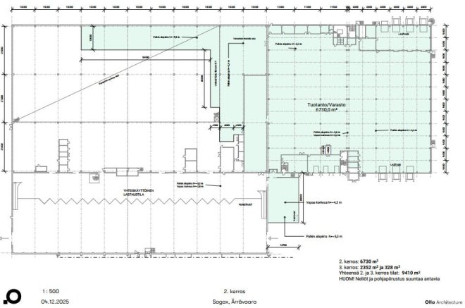
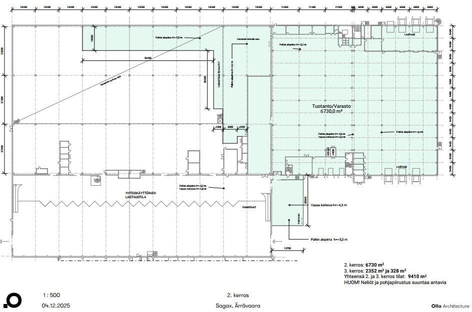
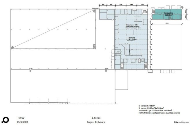
Tuotanto- ja varastotilat
Vantaa / Hämeenkylä
Koivuvaarankuja 2, 01640 Vantaa


