« takaisin
Ruosilantie 14, Helsinki Konala2223m2
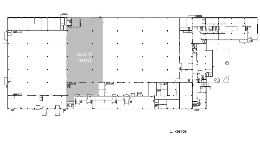
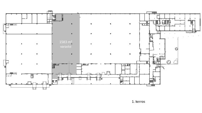
Heti vapaa noin 2 223 m² kokonaisuus, joka koostuu korkeasta varastotilasta (1 583 m²), toimistosta (218 m²) sekä siististä ja kompaktista parvivarastosta (422 m²). Varastossa on lastauslaituri nosto-ovella. Tila on aiemmin toiminut tapahtuma-alan yrityksen varastona.
Kohde sijaitsee erinomaisella paikalla aivan Kehä I:n liittymän tuntumassa. Kiinteistössä toimii lounasravintola ja pysäköintitilaa on runsaasti. Näytöt sovitaan hyvissä ajoin etukäteen. Varastotila vuokrataan yhdessä toimiston ja parvivaraston kanssa. Toimistotiloista löytyy keittiö sekä wc- ja sosiaalitilat.
Ei energiatodistusta.
m2
2223
Tuotanto- ja varastotilat
Helsinki / Konala
Ruosilantie 14, 00390 Helsinki


