« takaisin
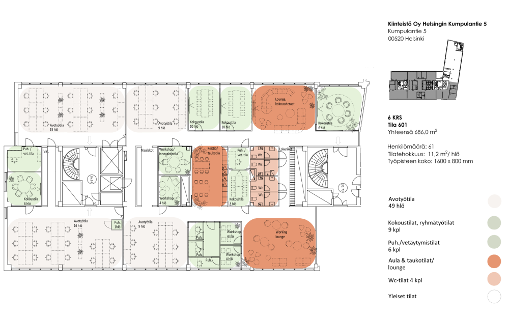
Kumpulantie 5, Helsinki Vallila686m2
Kuudennen kerroksen toimistotilaa , joka on jaettavissa. Kiinteistössä lounasravintola, aulapalvelu, saunaosasto sekä neuvotteluhuoneita vuokrattavana. Kiinteistössä lounasravintola, aulapalvelu, saunaosasto sekä neuvotteluhuoneita vuokrattavana.
Ei energiatodistusta.


