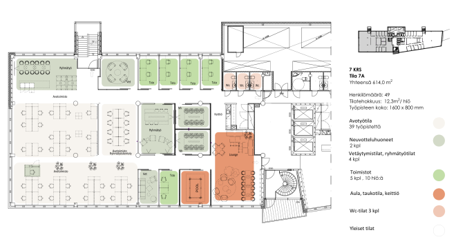
Lintulahdenkuja 10, Helsinki Sörnäinen614m2
Upea 7.kerroksen toimisto merimaisemilla. Toimistosta saa tehokkaan avotilan muutamilla huoneilla. Näkymät kolmeen ilmansuuntaan. Tilan voi yhdistää ylimmän kerroksen toimistoon sisäportaalla, jossa upea terassi merimaisemilla. Tämä tila taipuu monelaisiin tilatarpeisiin ja räätälöidään asiakkaan tarpeiden mukaan. Vuokraan sisältyy yhteiskäyttöiset neuvottelutilat sisääntulokerroksessa. Lintulahden toimistotalo valmistui kesällä 2009 ja se sijaitsee Hämeentien ja Sörnäisten rantatien välissä. Hankkeelle myönnettiin ensimmäisenä Pohjoismaissa LEED® -ympäristösertifikaatti. Hyvien liikenneyhteyksien varrella. Kiinteistössä on lämmitetty autohalli ja katutasossa henkilöstöravintola sekä vastaanottopalvelut. Vuokralaisten yhteiskäytössä on lisäksi iso neuvotteluhuonekeskus kaikkine palveluineen. Suihkutilat pyöräilijöille, Cat6 - kaapelointi
Ei energiatodistusta.


